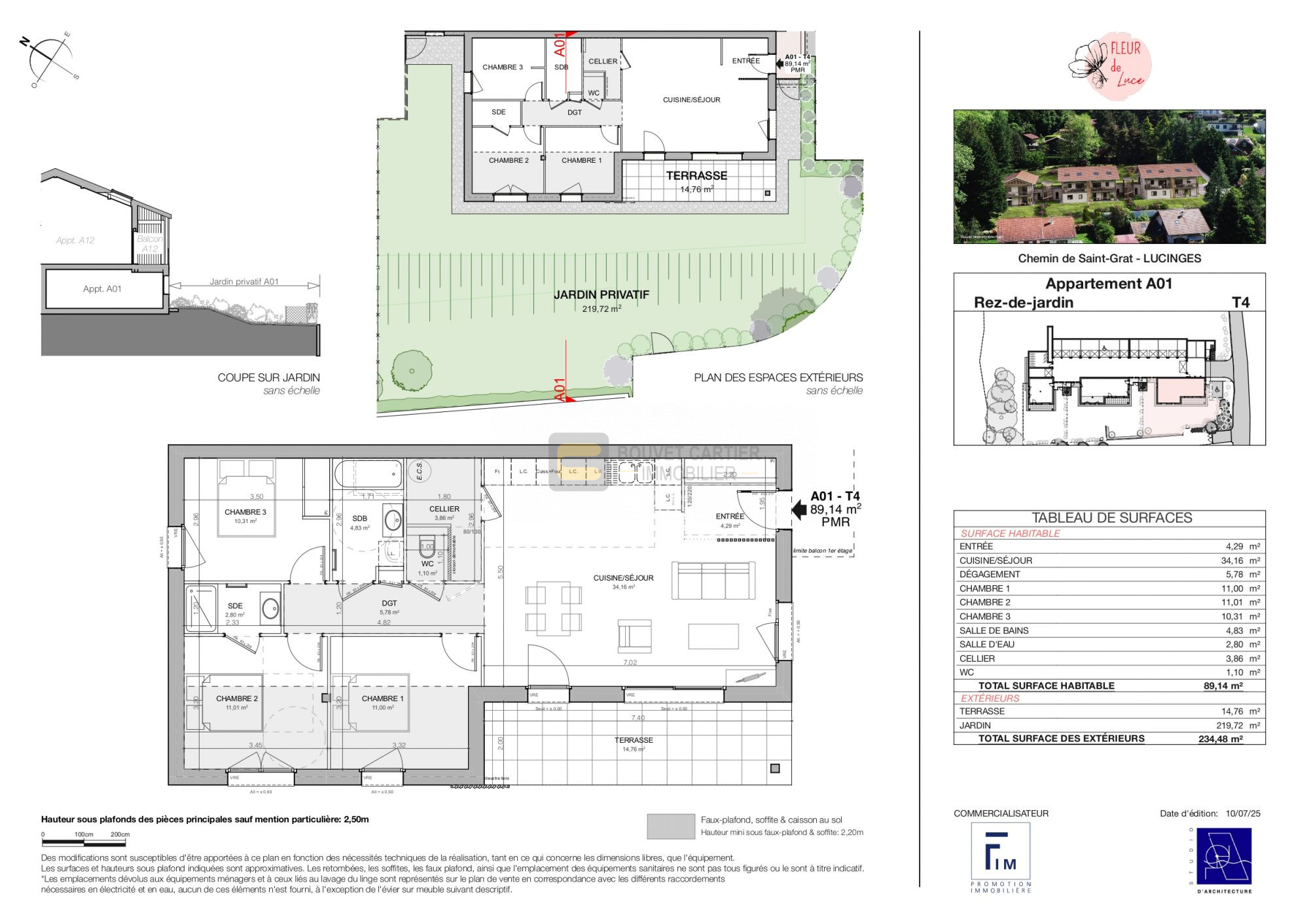
Achat appartement 4 pièces - 89 m²
Description du bien
Nichée au cœur de la commune de Lucinges, dans un environnement paisible et verdoyant, à seulement 40 minutes de Genève et 15 minutes de l'entrée d'autoroute, découvrez cette nouvelle résidence intimiste aux prestations de qualité, composée de seulement 8 logements ; un appartement de type T2 proposé au prix de 280 000€, trois appartements de type T4, à partir de 512 000€ et enfin quatre T4 en duplex, à partir de 652 000€.
Tous les logements disposent d'un espace extérieur - balcon ou terrasse avec jardin privatif - offrant un magnifique panorama sur le bassin Annemassien.
DPE : vierge
Charges de copropriété annuelles : NC
Bien en copropriété, nombre de lots : 16 dont 8 lots principaux.
Taxe foncière : NC
Bien en copropriété Surface loi Carrez :
Informations Risque et Pollution : www.georisques.gouv.fr
HONORAIRES CHARGE VENDEUR
Consultez nos tarifs sur www.bouvet-cartier.com/honoraires
Pour plus de renseignements sur cette annonce, contactez nous au 04 50 74 54 54 ou par mail agence.annemasse@bouvet-cartier.immo.
Dans une copropriété de 8 lots. Aucune procédure n'est en cours. Non soumis au DPE. Les informations sur les risques auxquels ce bien est exposé sont disponibles sur le site Géorisques : georisques.gouv.fr.
Informations complémentaires
Informations non contractuelles ne pouvant engager le cabinet.
CC : Charges comprises.
* Surface approximative.
Dépenses énergétiques
Achat - Vente - Location

74100 Annemasse