Location commerces et bureaux 6 pièces
Description du bien
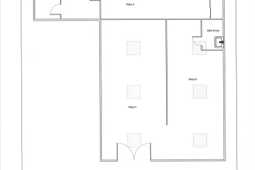
ANNEMASSE, secteur Vernand, au RDC d'un petit immeuble grand local à louer.
D'une surface de plus de 150m2, il permet d'envisager de nombreux usages (atelier de fabrication ou de réparation, stockage, dépôt, bureau, etc.)
Pour le confort des employés, la copropriété dispose d'un parking collectif pour les véhicules légers.
Disponible immédiatement, Ref. 39280
Loyer mensuel : 995€HT soit 1194€TTC
Provision pour charges mensuelle avec régularisation annuelle (incluant charges générales) : 50€
Soit un quittancement total de 1244€TTC
Taxe foncière facturée une fois par année : 960€ (Base année : 2024)
Surface : 153.83m2
Dépôt de garantie : 1990€
Honoraires charge locataire :
* Commercialisation : 995€HT soit 1194€TTC
* Rédaction de bail : 497.50€HT soit 597€TTC
* Etat des Lieux à la vacation au taux horaire de 144€TTC
Consultez nos tarifs sur www.bouvet-cartier.com / Honoraires
Les informations sur les risques auxquels ce bien est exposé sont disponibles sur le site Géorisques : www.georisques.fr
Informations complémentaires
Informations non contractuelles ne pouvant engager le cabinet.
CC : Charges comprises.
* Surface approximative.
Dépenses énergétiques
Situation géographique
Location - Gestion locative - Syndic de copropriété

74100 Ambilly


