Location commerces et bureaux 8 pièces
Description du bien
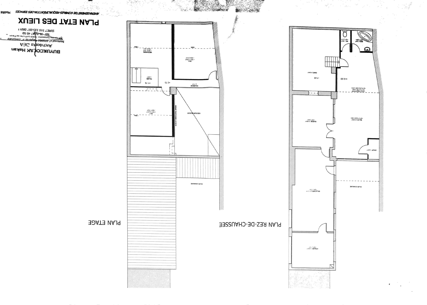
GAILLARD, Proche mairie, grand local à louer, d'une surface totale de 150 m2, sur plusieurs niveaux.
Disponible immédiatement, Ref. 29434
Pour plus de renseignements, contactez nous au 04 50 840 843 ou 04 50 74 54 55 ou par mail location@bouvet-cartier.immo
Loyer mensuel : 1000€ HC
Provision pour charges mensuelle avec régularisation annuelle : 150€
Soit un quittancement total de 1150€ TTC
Surface totale : 150m2
Dépôt de garantie : 1000€
Honoraires totaux charge locataire : 1000€ (dont honoraires de réalisation d'état des lieux : 350€)
Consultez nos tarifs sur www.bouvet-cartier.com / Honoraires
Informations complémentaires
Informations non contractuelles ne pouvant engager le cabinet.
CC : Charges comprises.
* Surface approximative.
Dépenses énergétiques
Situation géographique
Location - Gestion locative - Syndic de copropriété

74100 Ambilly


